Namo projektas Lina

Bendra informacija

Bendras plotas 179,95 m2
Gyvenamasis plotas 94,75 m2
Užstatymo plotas 203,51 m2
Ilgis 9,70 m
Plotis 16,70 m
Aukštis 7,66 m
Projekto kaina 45438.00 Lt

Pirmo aukšto planas

Pirmo aukšto planas
1. Tamburas 5,63 m2
2. Holas-laiptinė 3,63 m2
3. Sanmazgas 3,85 m2
4.  Darbo kambarys 11,32 m2
5. Svetainė- virtuvė 40,63 m2
6. Sandėliukas 8,17 m2
7. Katilinė 8,17 m2
8. Garažas 36,00 m2
Viso: 117,40m2

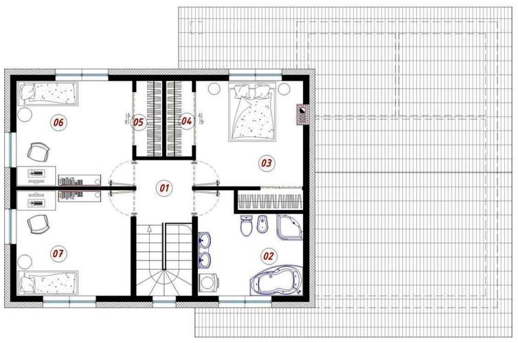
Antro aukšto planas

Antro aukšto planas
1. Holas- laiptinė 4,20 m2
2. Sanmazgas 10,97 m2
3. Miegamasis 14,69 m2
4.  Drabužinė 2,29 m2
5. Drabužinė 2,29 m2
6. Kambarys 14,14 m2
7. Kambarys 13,97 m2
Viso: 62,55m2

Visi parametrai

Kambarių sk. 4
Sanmazgų sk. 2
Garažų skaičius 2
Naudingas plotas 179,95 m2
Yra garažas Taip
Min. sklypo plotas 600 m2
Sąmatos kaina 250 Lt
Kaina su statybos leidimu nuo 4300 Lt


Namo projektas Lina - tai  vienšlaitis, vieno aukšto su mansarda namas. Paprasta Vienšlaičio  stogo konstrukcija. Namas su garažu dviems automobiliams. Mansardoje suprojektuoti trys miegamieji kambariai, darbo
ar svečių kambarys-pirmame aukšte.  Vidiniame kieme yra didelė   terasa. Namas  suprojektuotas iš blokelių, bet gali būti ir karkasinis. Namo išplanavimas patogus gyvenimui, su minimaliomis pagalbinėmis
patalpomis. Stogo danga, sienos, namo apdailos statybinės medžiagos parenkamos pagal kiekvieną užsakovą individualiai.Namo statyba nesudėtinga, paprasta tinkama statyti ūkio būdu.