Namo projektas Ekonomiškas 8
Bendra informacija
| Bendras plotas |
135,01 m2 |
| Gyvenamasis plotas |
84,08 m2 |
| Užstatymo plotas |
113,00 m2 |
| Ilgis |
8,85 m |
| Plotis |
12,00 m |
| Aukštis |
7,50 m |
| Projekto kaina |
36780.00 Lt |
Pirmo aukšto planas
| 1. Tambūras |
3,06 m2 |
| 2. Darbo kambarys |
10,07 m2 |
| 3. Sandėliukas |
6,18 m2 |
| 4. Katilinė |
5,01 m2 |
| 5. Holas |
11,24 m2 |
| 6. Svetainė-virtuvė- valgomasis |
30,74 m2 |
| 7. WC |
3,07 m2 |
| Viso: |
69,37 m2 |
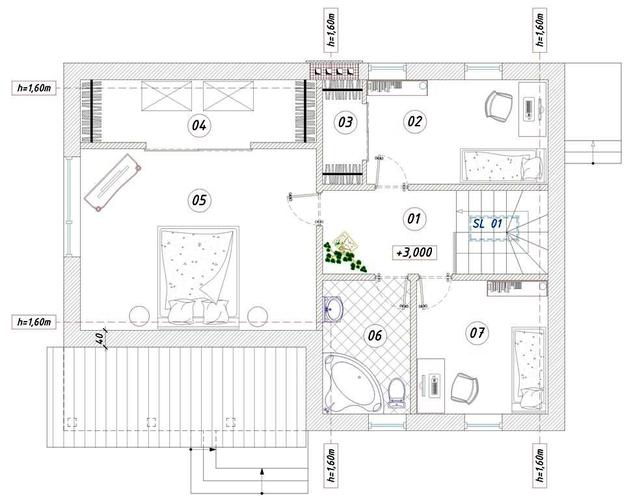
Antro aukšto planas
| 1. Holas- laiptinė |
6,40 m2 |
| 2. Vaiko kambarys |
10,38 m2 |
| 3. Drabužinė |
2,34 m2 |
| 4. Drabužinė |
7,35 m2 |
| 5. Miegamasis |
23,45 m2 |
| 6. Sanmazgas |
6,28 m2 |
| 7. Vaiko kambarys |
9,44 m2 |
| Viso: |
65,64 m2 |
Visi parametrai
| Aukštų skaičius |
2 |
| Kambarių sk. |
4 |
| Sanmazgų sk. |
2 |
| Naudingas plotas |
135,01 m2 |
| Min. sklypo plotas |
600 m2 |
| Sąmatos kaina |
250 Lt |
| Kaina su statybos leidimu |
Nuo 4000 Lt |