
Namo statyba Juras
Bendra informacija
Bendras plotas | 199,49 m2 |
---|---|
Gyvenamasis plotas | 114,11 m2 |
Užstatymo plotas | 254,02 m2 |
Ilgis | 26,95 m |
Plotis | 13,01 m |
Aukštis | 6,14 m |
Stogo pasvirimas | 20 ° |
Namo statybos kaina | 79796.00 Lt |
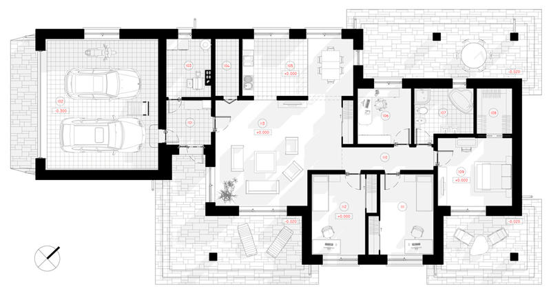
101. Tambūras | 6,30 m2 |
---|---|
103. Katilinė | 7,94 m2 |
104. Sandėliukas | 4,32 m2 |
105. Virtuvė - valgomasis | 19,84 m2 |
106. Darbo kambarys | 9,39 m2 |
107. Sanmazgas | 9,09 m2 |
108. Drabužinė | 5,10 m2 |
109. Tėvų miegamasis | 15,81 m2 |
110. Holas | 6,63 m2 |
111. Vaiko kambarys | 14,89 m2 |
112. Vaiko kambarys | 14,88 m2 |
113. Svetainė | 39,30 m2 |
Viso: | 153,49 m |
Visi parametrai
Aukštų skaičius | 1 |
---|---|
Kambarių sk. | 4 |
Sanmazgų sk. | 1 |
Naudingas plotas | 153,50 m2 |
Detalios sąmatos kaina | 250 € + PVM |
Projekto kaina su statybos leidimu | 3500 € + PVM |
Jei turite siaurą sklypą ir nežinote, ar yra Jums tinkantis namo projektas, Jūs radote būtent tai, ko reikia. Namo projekto statyba Juras idealiai pritaikytas siauram sklypui ir komfortiškam šeimos gyvenimui. Projekte keturi kambariai, erdvi svetainė, virtuvė - valgomasis ir pagalbinės patalpos. Funkciškai aiškiai matosi atskirtos trys zonos: pagalbinė, gyvenamoji ir poilsio. Pastaroji namo gale, kad būtų užtikrintas kokybiškas poilsis. Be to, suprojektuotos trys terasos: prie valgomojo, prie svetainės ir tėvų miegamojo. Tai namo projektas, atperkantis visus lūkesčius.Kadangi energinio naudingumo reikalavimai aukšti, klasikinės statybos sprendiniai rinkai tampa ne tokie patrauklūs ir priimtini. Kad NP5 rastų išskirtinių alternatyvių sprendimų ir sumažintų poveikį aplinkai, kad neprarastų architektūrinio išraiškingumo ir ne tik paspartintų statybas, bet ir sumažintų kainas, bendrovė pasitelkė vieną iš klasikinės statybos alternatyvų – lengvąsias plonasienes plieno konstrukcijas.
LPPK – tai šaltai suformuotos, t. y. valcuotos, lengvos plonasienių skerspjūvio profiliuočių konstrukcijos.
Šie plonasieniai plieniniai profiliai yra medinių konstrukcijų analogai dėl savo lengvumo, greito surinkimo statybos objektuose ir montavimo paprastumo. Lengvųjų plonasienių plieno konstrukcijų, taip pat kaip ir iš blokelių pastatytų, geometriniai matmenys eksploatavimo metu nekinta. Be to, pastatas visą eksploatavimo laikotarpį išlieka tvarus ir sandarus. Konstrukcijų savybės ir parinktys architektams suteikia laisvę, todėl gyventojams tai užtikrina geresnę gyvenimo kokybę. Ventiliuojamo fasado sienos, atitinkančios A++ reikalavimus, yra plonesnės už įprastines konstrukcijas, todėl išnaudojamas didesnis bendrasis vidaus patalpų plotas. Naudojamas plienas yra 100 % perdirbama medžiaga. Dėl šios priežasties neeikvojami gamtos ištekliai ir nėra atliekų. Konstrukcijos atitinka žiedinės ekonomikos principus ir yra lengvai transportuojamos. Kadangi pamatams taikomi mažesni reikalavimai, LPPK priskiriama tvariajai statybai.
Plačiau https://www.np5.lt/gamyba-lppk