Namo projektas Mantas

Bendra informacija

Bendras plotas 156,11 m2
Gyvenamasis plotas 103,20 m2
Ilgis 11,15 m
Plotis 11,60 m
Aukštis 7,00 m
Projekto kaina 43969.00 Lt

Pirmo aukšto planas

Pirmo aukšto planas
1. Tambūras 3,25 m2
2. Katilinė 5,78 m2
3. WC 3,41 m2
4.  Svetainė- valgomasis 37,21 m2
5. Virtuvė 15,16 m2
6. Holas-laiptinė 5,77 m2
7. Garažas 17,05 m2
Viso: 87,63 m2

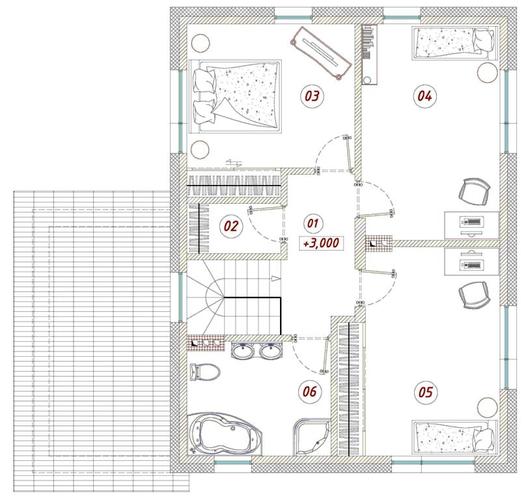
Antro aukšto planas

Antro aukšto planas
1. Holas-laiptinė 6,27 m2
2. Drabužinė 2,70 m2
3. Miegamasis 15,46 m2
4.  Miegamasis 17,11 m2
5. Miegamasis 18,26 m2
6. Sanmazgas 9,28 m2
Viso: 69,08 m2

Visi parametrai

Aukštų skaičius 2
Kambarių sk. 3
Sanmazgų sk. 2
Garažų skaičius 1
Naudingas plotas 156,71 m2
Yra garažas Taip
Min. sklypo plotas 600 m2
Sąmatos kaina 250 Lt
Kaina su statybos leidimu Nuo 4000 Lt

Vienšlaitis namo projektas Mantas - tai vieno aukšto su mansarda namas. Paprasta Vienšlaičio  stogo konstrukcija. Namas su garažu (garažas gali būti padidintas). Mansardoje suprojektuoti trys miegamieji kambariai.  Vidiniame kieme yra terasa. Namas  suprojektuotas iš blokelių, bet gali būti ir karkasinis. Namo išplanavimas patogus gyvenimui, su minimaliomis pagalbinėmis patalpomis. Stogo danga, sienos, namo apdailos statybinės medžiagos parenkamos pagal kiekvieną užsakovą individualiai.Namo statyba nesudėtinga, paprasta tinkama statyti ūkio būdu.