We want to inform you, that this website is using cookies for correct cart formation and website functions. For more detailed information about cookies, and how to cancel your confirmation, can be found here.

I agree uždaryti

Namo projektas Ekonomiškas 1

Bendra informacija

Bendras plotas 111,26 m2
Gyvenamasis plotas 75,74 m2
Užstatymo plotas 103,06 m2
Ilgis 9,60 m
Plotis 10,90 m
Aukštis 7,95 m
Stogo pasvirimas 45°
Projekto kaina € 39212.00
1. Tambūras 3,18 m2
2. Virtuvė-valgomasis 16,80m2
3. Svetainė 17,76 m2
4.  Holas 4,69 m2
5. Drabužinė 2,19 m2
6. Sanmazgas 9,24 m2
7. Katilinė 9,07 m2
Viso: 62,93m2

Pirmo aukšto planas

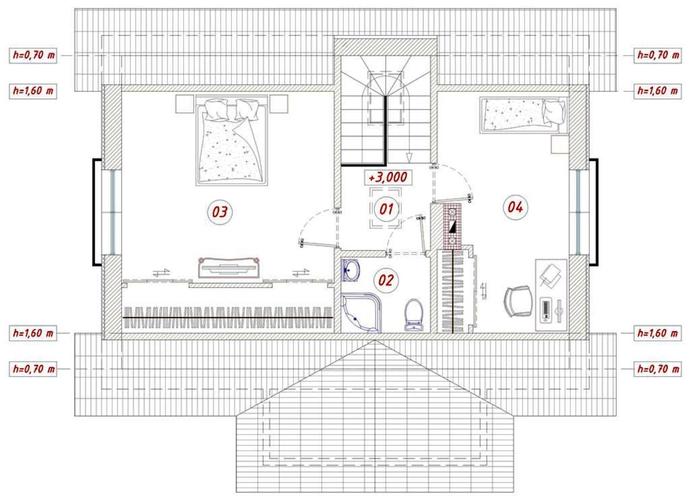
1. Holas 3,90 m2
2. Sanmazgas 3,40 m2
3. Miegamasis 25,65 m2
4.  Miegamasis 15,38 m2
Viso: 48,33 m2

Antro aukšto planas

Video

Kiti parametrai

Aukštų skaičius 2
Kambarių sk. 2
Sanmazgų sk. 2
Naudingas plotas 111,26 m2
Min. sklypo plotas 400 m2
Sąmatos kaina 250 Lt
Kaina su statybos leidimu Nuo 4000 Lt

Vieno aukšto su mansarda ekonomiškas namo projektas 3-4 asmenims. Projekte numatytas pirmame aukšte erdvus sanmazgas su skalbykla. Mansardoje gali būti drabužinė ar nedidelis sanmazgas su dušo kabina.

rekomenduojame
  • NP5
Namų projektai

Need help? Or maybe you have a question?

You will be served by company consultant

Leave a message
Reikia pagalbos?

Dviejų aukštų namai

Namo projektas Ekonomiškas 1

Bendra informacija

Bendras plotas 111,26 m2
Gyvenamasis plotas 75,74 m2
Užstatymo plotas 103,06 m2
Ilgis 9,60 m
Plotis 10,90 m
Aukštis 7,95 m
Stogo pasvirimas 45°
Projekto kaina € 39212.00
1. Tambūras 3,18 m2
2. Virtuvė-valgomasis 16,80m2
3. Svetainė 17,76 m2
4.  Holas 4,69 m2
5. Drabužinė 2,19 m2
6. Sanmazgas 9,24 m2
7. Katilinė 9,07 m2
Viso: 62,93m2

Pirmo aukšto planas

1. Holas 3,90 m2
2. Sanmazgas 3,40 m2
3. Miegamasis 25,65 m2
4.  Miegamasis 15,38 m2
Viso: 48,33 m2

Antro aukšto planas

Video

Kiti parametrai

Aukštų skaičius 2
Kambarių sk. 2
Sanmazgų sk. 2
Naudingas plotas 111,26 m2
Min. sklypo plotas 400 m2
Sąmatos kaina 250 Lt
Kaina su statybos leidimu Nuo 4000 Lt

Vieno aukšto su mansarda ekonomiškas namo projektas 3-4 asmenims. Projekte numatytas pirmame aukšte erdvus sanmazgas su skalbykla. Mansardoje gali būti drabužinė ar nedidelis sanmazgas su dušo kabina.

rekomenduojame
  • NP5
Mobili www.namustatybos.lt versija